Quadrilocale in vendita

Reggio Nell'Emilia, Via Dante Alighieri - Centro
€ 320.000
4 locali 4 locali
155 Mq 155 Mq
2 bagni 2 bagni

Quadrilocale in vendita

Reggio Nell'Emilia, Via Dante Alighieri - Centro

Descrizione annuncio

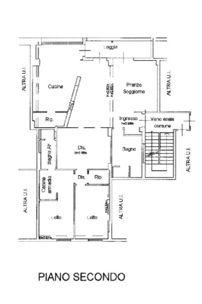
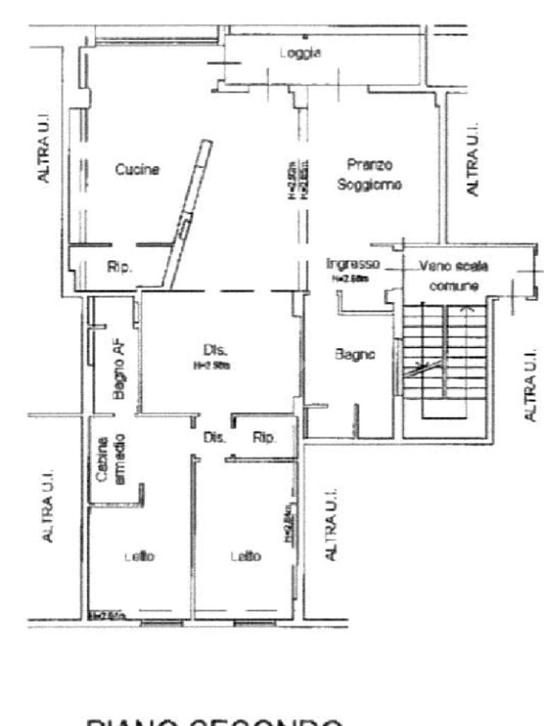
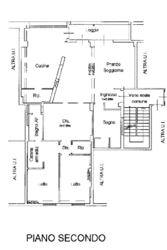
La Tecnocasa di Viale Umberto I propone in esclusiva uno splendido appartamento spazioso e ristrutturato nel cuore del Centro Storico di Reggio Emilia!

Proponiamo un ampio appartamento situato al secondo piano di un edificio dotato di ascensore.

L'immobile è stato ristrutturato completamente nel 2022, nel quale è stato sostituito l'impianto elettrico e idraulico, le rifiniture scelte sono di pregio come la pavimentazione che presenta parquet di rovere massello. L'appartamento offre un doppio soggiorno spazioso con terrazzo e una cucina abitabile di grandi dimensioni, entrambi gli ambienti sono illuminati da ampie finestre che garantiscono una luminosità naturale. La zona notte comprende due amplie camere da letto e uno studio da poter creare la terza camera, ideale per chi necessita di uno spazio dedicato al lavoro o allo studio. La soluzione è servita da due ampi bagni e un comodo ripostiglio. L'appartamento dispone di un terrazzo con vista sul giardino interno condominiale, perfetto per momenti di relax all'aperto.

Completano la proprietà un posto auto coperto e l'accesso a un parco privato condominiale, offrendo un'oasi di tranquillità nel cuore della città. Le predispozioni dell'aria condizionata in ogni stanza dell'appartamento assicurano un ambiente piacevole in ogni stagione.

Se sei interessato/a, chiamaci al numero 0522.525434, 3452160692, 3313314401, per fissare la tua visita privata, o vieni a trovarci direttamente in ufficio in Viale Umberto Primo 53/e.

Mostra tutto

Nelle vicinanze

Trasporto pubblico Trasporto pubblico
stazione di Reggio Emilia
stazione di Reggio Emilia
590 m
Reggio Emilia Santa Croce
Reggio Emilia Santa Croce
940 m
Porta S. Croce
Porta S. Croce
240 m
Viale Piave
Viale Piave
240 m
Reggio Viale Piave
Reggio Viale Piave
230 m
Ricariche auto elettriche Ricariche auto elettriche
Eneldrive Piazza dal Pòpol Giòst
160 m
Eneldrive Nobili
390 m
Eneldrive Parcheggio Piazzale Europa
510 m
Eneldrive Palazzo Vescovile
540 m
Eneldrive Stazione FS
560 m
Scuole Scuole
Istituto musicale pareggiato "A. Peri"
240 m
I.T.C. "Scaruffi-Levi-Tricolore"
260 m
Istituto comprensivo "L. da Vinci"
330 m
Scuola primaria statale "G. Carducci"
340 m
Liceo Artistico "G. Chierici"
350 m
Farmacia Farmacia
Farmacia Comunale della via Emilia
400 m
Farmacia del Parco
540 m
Farmacia Centrale
580 m
Farmacia della gabella
600 m
Farmacia Comunale Santa Croce
690 m
Ospedali Ospedali
Azienda ospedaliera Arcispedale Santa Maria Nuova
2,0 Km
Casa di cura policlinica Villa Verde
2,6 Km
Supermercati Supermercati
Conad Le Vele
740 m
Coop UNO
880 m
Coop Reggio Est
930 m
Eurospar
970 m
Coop Porta Castello
1,0 Km
Negozi Negozi
Khan Mini Market
180 m
Intimissimi
420 m
La Boulangerie
430 m
Le Simpatiche Canaglie
470 m
Arki
480 m
Bar Bar
The Craftsman
760 m
Cafè Fontanesi
800 m
Canossa Bistrot
800 m
Dimmelo tu
840 m
Café Reggio
940 m
Ristoranti Ristoranti
Un Punto Macrobiotico
150 m
Biosteria Ghirba
200 m
Taiko
240 m
Tigelliamo
270 m
I'Ciripasso
290 m
Mostra tutto

Caratteristiche

Rif.:
61126516
Piano:
2 di 3 con ascensore (Piano medio)
Posti auto:
2
Terrazzi:
1
Camere da letto:
3
Arredamento:
Parziale
Mostra tutto
Prezzo Prezzo
€ 320.000
Rata mutuo Rata mutuo
€ 1.475 / mese
Spese annue Spese annue
€ 2.500
Proponi il tuo prezzoProponi il tuo prezzo
Immobile valutato con T·Valuta

Classe Energetica

E
E
E
E
E
E
E
E
E
EP globale non rinnovabile:
201.42 kW h/m² anno
EP globale rinnovabile:
95.57 kW h/m² anno
EP invernale del fabbricato:
EP estiva del fabbricato:
Anno di costruzione:
1975
Riscaldamento:
Autonomo
Tipo impianto:
A radiatori
Tipo alimentazione:
Metano

Ti interessa visionare l'immobile?

Fissa un appuntamento  Fissa un appuntamento

Richiedi informazioni

* Questi campi sono obbligatori

Calcola il tuo mutuo

Semplice e senza impegno
Anticipo

( % )
Mutuo

( % )

pochi semplici passi

inserisci i tuoi dati
Questionario completato
Grazie per aver richiesto un appuntamento senza impegno con un nostro Consulente del Credito e Assicurativo.

Hai inserito correttamente tutti i dati necessari e a breve riceverai una e-mail con un link da convalidare per inviare i tuoi dati.
Affiliato
Reggio Emilia 4 Srl
Viale Umberto I, 53/E 42100 Reggio Nell'Emilia (RE)
Viale Umberto I, 53/E 42100 Reggio Nell'Emilia (RE)
Zona: Viale Umberto I - Porta Castello - Gattaglio - Regina Pacis
Mostra su mappa
Orari: Dal lunedì al venerdì dalle ore 9 alle ore 13 e dalle ore 15 alle ore 20; sabato dalle ore 9 alle ore 13. Pomeriggio su appuntamento
Affiliato
Reggio Emilia 4 Srl
Viale Umberto I, 53/E 42100 Reggio Nell'Emilia (RE)

2025 Tecnocasa Franchising S.p.A. - P. IVA 08365160152 - Via Monte Bianco 60/A 20089 Rozzano (MI). Ogni agenzia ha un proprio titolare ed è autonoma. Privacy policy | Policy utilizzo | Cookie policy