Trilocale in vendita

Reggio Nell'Emilia, Via Premuda - Regina Pacis
€ 130.000
3 locali 3 locali
104 Mq 104 Mq
1 bagno 1 bagno

Trilocale in vendita

Reggio Nell'Emilia, Via Premuda - Regina Pacis

Descrizione annuncio

La Tecnocasa di Viale Umberto I vi propone in vendita un appartamento di ampie metrature nel Cuore della Regina Pacis!

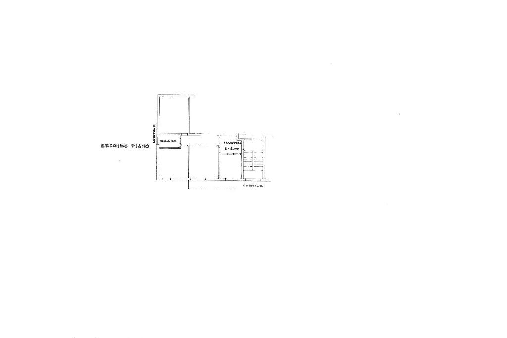
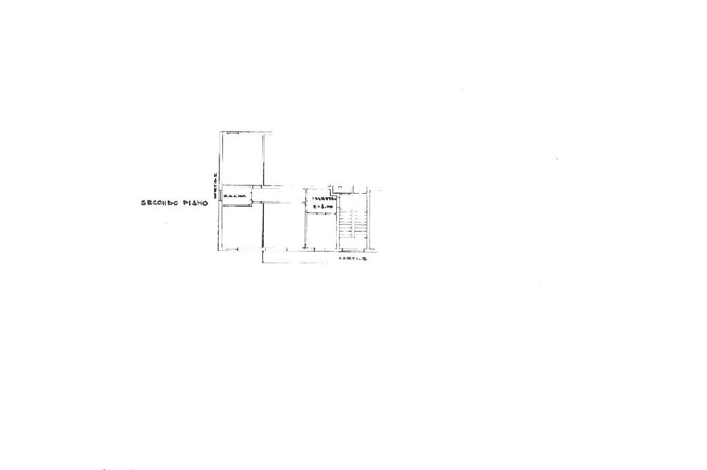
Nel cuore della località di Regina Pacis, a Reggio nell'Emilia, è disponibile un appartamento in vendita che offre comfort e praticità. Situato al piano basso di un edificio civile, questo immobile di 104 mq è stato costruito nel 1965 e ristrutturato nel 1990, garantendo una struttura solida e ben mantenuta. La palazzina è completata dalla presenza di un ascensore. L'appartamento si compone di tre locali ben distribuiti, ideali per chi cerca spazi funzionali e accoglienti. La disposizione interna permette di sfruttare al meglio ogni ambiente, rendendolo adatto sia a famiglie che a professionisti. La posizione strategica consente di raggiungere facilmente i principali servizi e le vie di comunicazione, offrendo al contempo la tranquillità di una zona residenziale. Questa soluzione rappresenta un'opportunità interessante per chi desidera vivere in un contesto comodo e ben servito. La soluzione è composta da:

Cucina Abitabile e Soggiorno: La cucina è di generose dimensioni ed è separata dal soggiorno. Il soggiorno, presenta un ampia vetrata che rende l'ambiente molto luminoso. Questi due ambienti possono essere facilmente trasformati in un ampio open space, ottimizzando al massimo l'utilizzo degli spazi. Sia la cucina che il soggiorno sono collegati esternamente da un comodo balcone.

Due Camere da Letto Matrimoniali: La zona notte accoglie due ampie camere da letto matrimoniali, offrendo il massimo comfort e privacy. Ogni stanza è caratterizzata da un'abbondante illuminazione naturale e da spazio sufficiente per arredi su misura.

Bagno: Il bagno, finestrato offre un ambiente luminoso e salubre.

Pertinenze: Solaio privato e Garage.

Se sei interessato/a, chiamaci al numero 0522.525434, 3313314401, 3452160692 per fissare la tua visita privata, o vieni a trovarci in Viale Ettore Simonazzi, Oppure contattaci sulle nostre pagine social:

- facebook: gruppo tecnocasa reggio emilia rosta;

- Instagram: tecnocasa_rosta

Mostra tutto

Nelle vicinanze

Trasporto pubblico Trasporto pubblico
Reggio Emilia Santo Stefano
Reggio Emilia Santo Stefano
1,3 Km
stazione di Reggio Emilia
stazione di Reggio Emilia
2,2 Km
Regina Pacis
Regina Pacis
260 m
Incrocio Via Marsala
Incrocio Via Marsala
320 m
Reggio all’Angelo
Reggio all’Angelo
1,0 Km
Ricariche auto elettriche Ricariche auto elettriche
Eneldrive Centro Commerciale Le Querce
440 m
Eneldrive Piazza Vincenzo Gioberti
1,0 Km
Reggio nell'Emilia Roversi | EnelX
1,1 Km
Eneldrive Viale Trento Trieste
1,3 Km
Eneldrive Palazzo Vescovile
1,3 Km
Scuole Scuole
Istituto comprensivo "M. E. Lepido"
220 m
Scuola primaria "A. Bergonzi"
650 m
Nido d'infanzia "G. Rodari"
760 m
Lingua Point
800 m
Scuola primaria e scuola dell'infanzia statali "Dante Alighieri"
860 m
Farmacia Farmacia
Farmacia Comunale Gattaglio
730 m
Parafarmacia
910 m
Farmacia della Ghiara Farmacie comunali riunite
1,0 Km
Farmacia
1,2 Km
Farmacia comunale Roncina
1,2 Km
Ospedali Ospedali
Casa di cura policlinica Villa Verde
1,7 Km
Azienda ospedaliera Arcispedale Santa Maria Nuova
1,7 Km
Supermercati Supermercati
Coop Vivaldi
330 m
CONAD SUPERSTORE Le Querce
430 m
Esselunga
710 m
Coop UNO
950 m
Conad
990 m
Negozi Negozi
Le Delizie dell' orto
680 m
Forno Antichi Sapori
910 m
Ps Personal Shopper
1,1 Km
Alchimista
1,2 Km
Unity Store
1,2 Km
Bar Bar
Bar Glennys
240 m
Pellini
880 m
Hausbandt Caffe
1,1 Km
Baretto
1,2 Km
Canossa Bistrot
1,2 Km
Ristoranti Ristoranti
Il Girasole
230 m
La Pignatta
330 m
Oasi
620 m
Zushi
910 m
Ramengo
940 m
Mostra tutto

Caratteristiche

Rif.:
61002244
Piano:
2 di 4 con ascensore (Piano basso)
Box:
1
Posti auto:
1
Balconi:
1
Camere da letto:
2
Mostra tutto
Prezzo Prezzo
€ 130.000
Rata mutuo Rata mutuo
€ 618 / mese
Spese annue Spese annue
€ 1.200
Proponi il tuo prezzoProponi il tuo prezzo

Classe Energetica

Questo immobile è esente da classe energetica
Anno di costruzione:
1965
Riscaldamento:
Centralizzato
Tipo impianto:
A radiatori
Tipo alimentazione:
Metano

Ti interessa visionare l'immobile?

Fissa un appuntamento  Fissa un appuntamento

Richiedi informazioni

Clicca su Leggi per aprire l'informativa
* Questi campi sono obbligatori

Calcola il tuo mutuo

Semplice e senza impegno
Anticipo

( % )
Mutuo

( % )

pochi semplici passi

inserisci i tuoi dati
Questionario completato
Grazie per aver richiesto un appuntamento senza impegno con un nostro Consulente del Credito e Assicurativo.

Hai inserito correttamente tutti i dati necessari e a breve riceverai una e-mail con un link da convalidare per inviare i tuoi dati.
Affiliato
Reggio Emilia 4 Srl
Viale Umberto I, 53/E 42100 Reggio Nell'Emilia (RE)
Viale Umberto I, 53/E 42100 Reggio Nell'Emilia (RE)
Zona: Viale Umberto I - Porta Castello - Gattaglio - Regina Pacis
Mostra su mappa
Orari: Dal lunedì al venerdì dalle ore 9 alle ore 13 e dalle ore 15 alle ore 20; sabato dalle ore 9 alle ore 13. Pomeriggio su appuntamento
Affiliato
Reggio Emilia 4 Srl
Viale Umberto I, 53/E 42100 Reggio Nell'Emilia (RE)

2026 Tecnocasa Franchising S.p.A. - P. IVA 08365160152 - Via Monte Bianco 60/A 20089 Rozzano (MI). Ogni agenzia ha un proprio titolare ed è autonoma. Privacy policy | Policy utilizzo | Cookie policy